登录| 注册    
收藏  点赞 

平面闸门

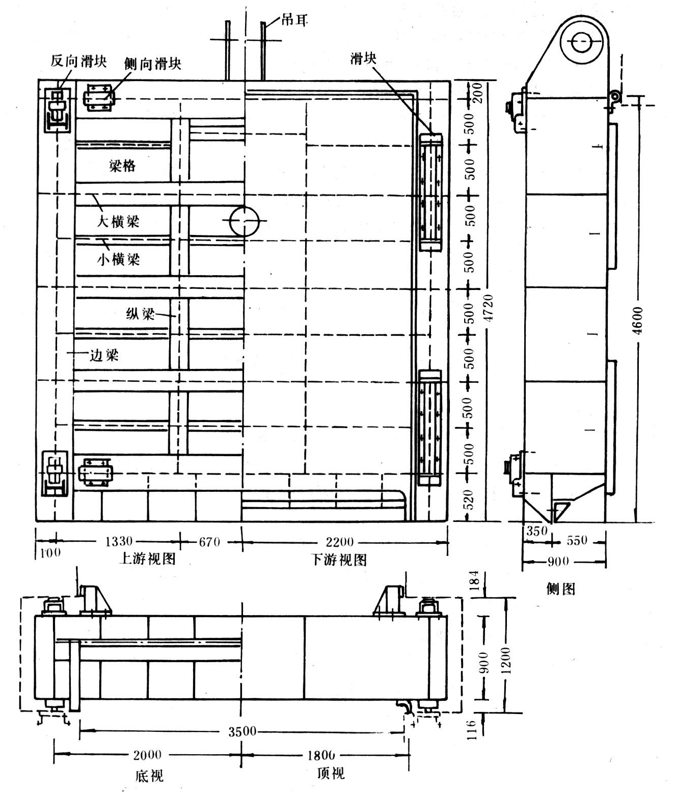
由平面面板和梁格构成门叶封闭水道孔口的闸门,通常指直升式平面闸门,又称平板闸门。门叶支承在两侧端部的滑道、定轮或履带上,启闭时可沿埋置在圬工结构内的轨道上下移动。为保证移动的平稳性,门叶两侧设有导引装置。为防止孔口漏水,门叶周边设有止水(见图)。 平面闸门结构布置 平面闸门的支承行走部件及其构造不同有滑动式、定轮式和履带式等多种。

由平面面板和梁格构成门叶封闭水道孔口的闸门,通常指直升式平面闸门,又称平板闸门。门叶支承在两侧端部的滑道、定轮或履带上,启闭时可沿埋置在圬工结构内的轨道上下移动。为保证移动的平稳性,门叶两侧设有导引装置。为防止孔口漏水,门叶周边设有止水(见图)。

平面闸门结构布置

平面闸门的支承行走部件及其构造不同有滑动式、定轮式和履带式等多种。滑道又因材料不同,有木滑道、金属滑道、胶合层压木滑道和复合材料滑道等。木滑道用得很少。胶合层压木滑道由于制作简便,价格低廉,摩擦系数较小,20世纪50年代起在苏联和中国应用较广,但摩擦系数不能稳定。以后又研制成功了许多新的滑道材料,如苏联的Д型含油润滑树脂滑道,中国的SF型三层复合材料滑道等。

定轮门是在门叶端部装置固定的滚轮(简支式、悬臂式和台车式),启闭时的支承摩擦阻力较滑动门要小,应用很广,合金铸钢的单轮荷载可达到300吨以上。履带闸门启闭时的支承摩擦阻力较小,但构造较复杂,造价也比较高,用得不多。

门叶一般采用梁板结构,其分析计算大都按平面结构体系考虑,自从有限元法和电子计算机出现后,正在逐步过渡到按空间结构体系分析。

直升式平面闸门的主要优点有:①建筑物顺水流方向所需尺寸较小;②门叶可移出孔口,便于检修维护;③门叶可在孔口间互换通用;④便于采用移动式启闭机操作。主要缺点是:①门槽影响水流流态,容易引起空蚀、振动等不良现象;②闸墩较厚,启闭机台较高;③启闭力较大。