登录| 注册    
收藏  点赞 

土工模型试验

用与原型相似的装置来研究土工问题的一种物理模拟技术。它是以某一比例尺将原型按几何相似缩小,用一定材料制成物理模型在室内试验。这样做规模小、费用少,能迅速研究各种影响因素,并可进行破坏性试验而无严重损失,如溃坝试验等。早在18世纪就有挡土墙模型,以及目前常用的渗流模型试验等(见土中渗流)是在通常重力场下进行的相似模型,此类模型统称为普通模型。

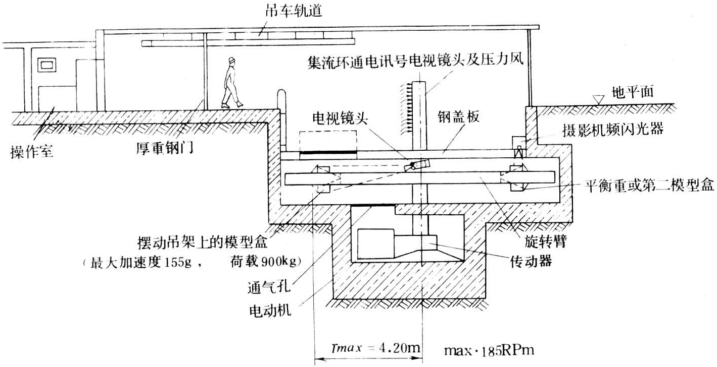
用与原型相似的装置来研究土工问题的一种物理模拟技术。它是以某一比例尺将原型按几何相似缩小,用一定材料制成物理模型在室内试验。这样做规模小、费用少,能迅速研究各种影响因素,并可进行破坏性试验而无严重损失,如溃坝试验等。早在18世纪就有挡土墙模型,以及目前常用的渗流模型试验等(见土中渗流)是在通常重力场下进行的相似模型,此类模型统称为普通模型。20世纪30年代,苏、美发展了离心模型,它是将缩小几倍的相似模型安放在离心机上,于人造重力场中进行试验。它在60年代后期得到迅速的发展。现在苏、英、法、美、日、丹麦等国都有土工离心机如图1。中国自1982年开始,也开展了离心模型试验。

英国剑桥大学土工离心机(最大加速度155g,荷载900千克)

模型是与物理系统密切有关的装置,通过对它的观察或试验,可以在所需要的方面,精确地预测系统的性状。这个被预测的物理系统通常称为“原型”或“原体”。为了研究某种实际现象,在试验室条件下,通过模型来进行相似现象的研究,称为模拟。这种物理模拟可以把具体的现象重现出来。因此,模型和原型间必须满足某种关系,才能模拟某种现象,此关系称为相似准则,也称模拟条件。它可通过量纲分析法、或描述此类物理现象的微分方程或物理定律分析法得以建立。模型所用材料应模拟原型材料的物理力学特性,而土的特性很复杂,难以用其它材料模拟,故土工模型常用与原型同样材料制备。土力学主要研究土体的变形与稳定问题,所以模型主要是模拟土介质中的应力状态。当模型与原型应力状态(包括自重应力与施加荷载)完全相同时,其相似准则为:aplp=amlm(a为加速度,l为几何尺寸,脚标p、m分别表示原型与模型),可按此准则来进行模型设计。

普通模型 是在重力场中试验,故am=ap=g,(重力加速度)则lm/lp=1,即模型与原型的几何尺寸应相等,这表明普通模型不能模拟自重应力或体积力。因此,凡是自重应力是主要影响因素的一类土工问题,若用普通模型,则在力学上是不相似的,它的自重应力远比原型的小,故模型不能反映原型上发生的现象,它仅代表一种小型实物的性状,不能预估原型性状。不过普通模型设备简单易行,目前仍在继续使用。对于一些应力水平和应力路线受外荷载所支配的情况或土的不排水强度为主及施加应力路线是主要控制因素的情况,如打桩问题等,用普通模型还是有效的。

离心模型 因am/ap=lp/lm=n或am=ng,故模型应在ng人造重力场中试验,即作用在1∶n比尺模型上的单位体积力是重力的n倍,这是离心模型律的基本原则。离心模拟法是以惯性离心力(也称人造重力)来代替重力作用在模型上,因这两种力在物理学上是绝对等效的,而且增大加速度不会改变工程材料性质。所以它是模拟原型自重应力的好方法,只要用原型土料做离心试验,就能自动地使整个模型中应力相似,并能反映原型土的应力~应变特性。离心模型,除能实现自重应力及应力路线的相似外,还能缩短过程的时间,如土中与渗流、固结有关的过程都比原型快n2倍。总之,多数土工问题,根据量纲分析可明显看出:离心模型的相似性远较普通模型为佳,但离心模型也有缺点,如土粒不能按比例缩小,因而带来不能正确模拟逐渐破损和剪胀宽度的缺点。再者,次固结或蠕变沉降等问题也不能正确模拟。

土工建筑物的抗震试验,除可用离心模型外,通常也在能模拟地震的大型振动台上进行。土工模型与本构模型、数值分析法(见土工数学模拟)以及原型的相互关系见图2。所以土工模型既可验证土的本构关系和数值方法,又可预估原型性状,还有一重要作用,即揭示某些意外机理,可见它是研究土力学与岩土工程设计的重要手段。

图2 土工模型与岩土工程设计程序的相关图