登录| 注册    
收藏  点赞 

活性炭

一种经过活化,具有发达的孔隙结构、很大的比表面积(可达1500平方米/克以上)和巨大的吸附力的炭。用不同方法制得的活性炭,具有不同形状和大小的孔隙以及性质不同的表面官能团,因而有选择性吸附的能力,能从多组分的气体和液体中吸附和分离其中某些成分。它是工业生产、科学研究、军工国防和人民生活中广泛使用的吸附剂。简史据埃及古书记载,远在公元前1550年以前炭就在医学上应用。

一种经过活化,具有发达的孔隙结构、很大的比表面积(可达1500平方米/克以上)和巨大的吸附力的炭。用不同方法制得的活性炭,具有不同形状和大小的孔隙以及性质不同的表面官能团,因而有选择性吸附的能力,能从多组分的气体和液体中吸附和分离其中某些成分。它是工业生产、科学研究、军工国防和人民生活中广泛使用的吸附剂。

简史

据埃及古书记载,远在公元前1550年以前炭就在医学上应用。在中国长沙马王堆西汉墓(公元前190~前110年)中发掘出完好的女尸,木椁四周及上部填塞木炭,厚30~40厘米,约5000多千克,这是对炭的吸附性能的应用。在工业上生产活性炭,是从1900~1901年荷兰科学家奥斯特利杰科(Raphael von Ostrejko)取得化学药剂法和气体活化法等的专利开始的。第一次世界大战时,活性炭开始用于防毒面具,并且提出了著名的吸附理论,如毛细管凝聚理论,吸附等温线和孔径分布学说,单分子层和多分子层吸附理论等,这些理论研究加深了对活性炭的认识,促进了活性炭生产的发展和应用领域的扩大。到30年代,活性炭生产已成为一门工业,40年代后提出的活性炭孔隙分类法和以吸附势理论为基础的微孔充填理论都获得实际的应用。在中国1932年才开始研究活性炭的生产工艺,到50年代逐渐形成活性炭工业。

种类

活性炭种类繁多,按其外形可分粉状炭、颗粒炭和纤维状炭,以及活性炭纸、活性炭布、活性炭板等制品;按其用途可分气相吸附炭、液相吸附炭、催化剂和催化剂载体炭等;按其生产方法可分物理炭、化学炭。

活化原理

活化方法有气体活化法和化学药剂活化法两类。气体活化法又称物理法。含碳物料用一些氧化性气体如水蒸气、二氧化碳(或烟道气)或氧气(或空气)作为活化剂,在高温下进行活化制造活性炭。木材在炭化过程中常有一些焦油物质残留在木炭中,在活化过程中,活化剂可以使残留的焦油和其他含碳化合物氧化分解,清除表面的杂质,使原来被堵塞的孔隙开放;活化剂也能侵蚀炭的表面,形成新的孔隙,原来孔隙之间的薄壁有可能被烧失,使孔隙扩大,从而形成非常发达的孔隙结构,使比表面积大大增加和提高了炭的吸附力。活化需要的温度因活化剂种类而不同,用水蒸气活化的温度约为800~950℃,用烟道气活化时约900~950℃,用空气作活化剂时,由于在高温下碳和氧的反应非常剧烈,一般在600℃左右活化。

化学药剂活化法多用氯化锌作为活化剂。主要利用氯化锌在高温下对植物原料中的纤维素起润胀、脱水、侵蚀和溶解作用,而使其形成孔隙,达到活化的目的。氯化锌法一般能制得过渡孔比较发达的活性炭,适用于糖色等大分子杂质的去除。用氯化锌法制造活性炭时,锌屑比(无水氯化锌与绝干木屑重量之比)对制得活性炭的孔隙大小有很大影响,锌屑比大时,可以制得过渡孔较发达的活性炭;锌屑比小时,可以制得微孔较发达的活性炭。几乎所有的含碳物质都可以经过不同的工序制成活性炭

原料

林业和农业植物原料,包括木炭、木屑、果核、果壳等(其中木屑和木炭是传统原料,椰子壳是最佳原料);矿物原料,包括煤、石油沥青、石油焦炭等;城市含炭废料,主要指水解木质素、浸提栲胶后的浅渣、制浆废液、废橡胶和塑料等。

制造工艺

活性炭的制造工艺主要有气体活化法和化学药剂活化法。气体活化法可以制造粉状活性炭,也可以制造颗粒炭。制造粉状炭一般用小炭粒进行活化,然后将活化炭磨碎成粉状;制造颗粒炭则用炭质较硬的炭粒(如果壳炭)或炭粉加粘结剂成型得到的炭粒进行活化制造活性炭

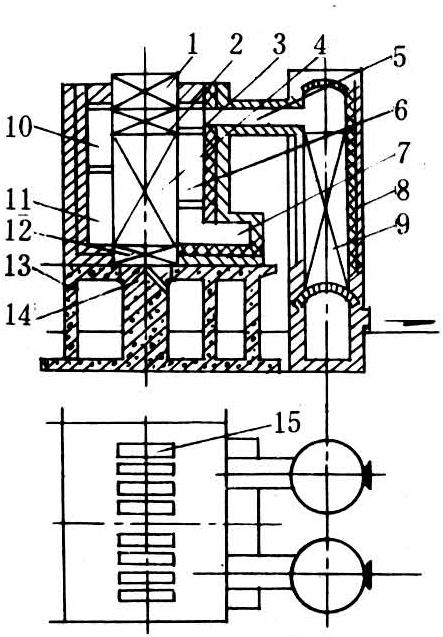
图1 鞍式炉结构示意

气体活化法

制造活性炭的主要设备是活化炉。在中国,气体活化法常用鞍式炉,也有用多管炉、流态化炉和转炉。美国还用多层炉等。鞍式炉(图1)是由活化炉炉体、左右两个蓄热室和烟囱组成。活化炉炉体是用马鞍形和其他异形耐火砖砌成的有许多活化道的方形炉(图2),分为左右两个半炉。原料炭装入炉顶的原料槽内,借重力沿活化道缓慢下降,顺序经过预热段、补充炭化段、活化段和冷却段,最后由下部卸出。用卸料的间隔时间长短来控制炭料的下降速度。水蒸气活化剂送入左蓄热室下部,被预热到1000~1100℃后送入左半炉,经活化段与原料炭直接接触使其活化。由于活化反应是吸热反应,使炉温不断下降。活化得到的混合气体转入右半炉,在炉子的不同位置上通入二次空气,使可燃气体燃烧,产生的热量使炉温上升,混合气体使右半炉的木炭活化。逸出的高温烟道气进入右蓄热室,使其中的格子砖加热升温后排入烟囱。每隔30分钟将烟道、空气和水蒸气的闸阀切换一次,这时水蒸气送入右蓄热室按完全相反的方向流动,这样,可以使左右两半炉交替升温和降温,经常保持在活化需要的温度范围内。正常的活化温度为850~950℃。必须注意保持活化炉的正压操作。活化炉卸出的活化料经除砂、破碎、筛选、酸洗、水洗、脱水、干燥等后处理工序即可得活性炭成品。

化学药剂活化法

一般用氯化锌作活化剂,多用来制造粉状活性炭,也能制得颗粒活性炭。制造粉状活性炭的设备常用平板炉和回转炉,制造方法是将木屑用一定浓度(一般糖用炭为50~57°Be′/60℃,药用炭为45~47°Be′/60℃)的氯化锌溶液浸渍,然后进行炭化和活化。活化温度一般在600℃以下,活化料进行回收氯化锌、漂洗、离心脱水、干燥和磨碎即可制得粉状活性炭。氯化锌法的产品得率比气体活化法高,能在较低温度下进行活化,通过工艺上的调整可以生产出性质不同的活性炭。但在生产过程中容易造成气相和水质污染,必须对废气和排水进行环保处理。

图2 活化道剖视

结构和性质

活性炭属无定形碳,虽然它们不具有金刚石和石墨那样的结晶结构,但是,从X射线的衍射中已经查明,它们的结构中含有基本微晶。基本微晶是由几层碳原子呈六角形排列的网状结构不规则的互相重叠组成的。在活性炭中除了基本微晶以外,还有未组成平行层的单个网平面和无规则的碳,如脂肪链状结构的碳,附着在芳族结构边缘上的碳等。活性炭的元素组成除了碳元素以外,还有以化学结合形式存在的氢、氧等,和以灰分形式存在的许多元素,活性炭的表面还有酸性的和碱性的表面氧化物和官能团。

活性炭最重要的性质是吸附性质。活性炭是多孔物质,含有大量的孔隙,其中有半径在20埃以下的微孔,半径为20~1000埃的过渡孔和半径为1000~20000埃的大孔。由于各种活性炭的孔隙大小不同和含有不同性质的表面氧化物及官能团,因此,吸附性能各不相同,并具有选择吸附的能力。例如糖用活性炭具有较多的过渡孔、对大分子的糖色杂质有较好的吸附力,而具有较多微孔的活性炭适用于气相吸附和小分子杂质的去除。粉状活性炭的主要质量指标:对0.15%亚甲蓝的脱色力为8~14毫升/0.1克活性炭,对A法或B法焦糖色的脱色力为90~100%,总铁量不大于0.05~0.10%,氯化物含量不大于0.2~0.25%,pH值3~9,灼烧残渣不大于3~8%,干燥减量不大于10%。详细的分类和分级指标见中华人民共和国林业部粉状活性炭标准LY 216—79。

应用

活性炭的应用范围非常广泛,在气相吸附中,用于从废气中除去有害气体,环境保护中的空气净化,回收溶剂,排烟脱硫,原子辐射的防护和除去原子能设施中逸出的核裂变放射性物质和放射性碘、氪、氙等。在液相吸附中,用于食品工业中的葡萄糖、饴糖、食糖、乳制品、食用油、果汁饮料、酒类、食品添加物如味精、柠檬酸、琼脂、果胶和其他食品的精制净化;医药工业中各种药物和针剂的净化精制;化学工业中各种化学药品、工业用油剂等的精制、净化和回收;废水处理,用水处理;合成纤维工业、石油精制等,以及用作催化剂和催化剂载体等。

趋势

在世界范围内,对颗粒活性炭的需求增长较快,特别是环境污染问题随着工农业生产的发展越来越突出,对废水和废气处理用活性炭的需求日益增大,将促进活性炭工业的发展。